GRC:ハイウォール(超高層用カーテンウォールGRC) |ニチアスセムクリート

  • GRC
  • アーキテクチュアルGRC
  • GRC/GRGデザイン提案
  • 最新実績紹介
  • 実績紹介
  • ハイウォール(超高層用カーテンウォール)
  • セムクリートライト(プレミックスGRC)
  • セムクリート2(ダイレクトスプレー 新GRC)
  • アーキテクチュアルGRC・グラフィックGRC(表面デザインGRC)
  • スピカ(GRG・ガラス繊維補強石膏)
  • 製品比較
  • 集合住宅用GRC製品
  • アスベスト対策
  • 巻き付け耐火被覆材
  • フリーアクセスフロア・NOAフロア/オメガフロア/パットフロア
ハイウォール

ハイブリットな
大型GRCカーテンウォールを実現

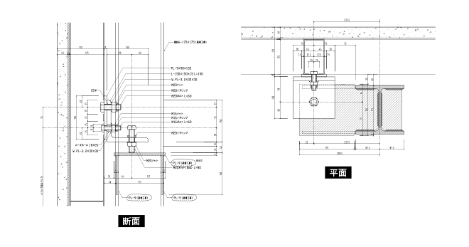
ハイウォールとは、ハイブリットウォールの略でGRCとスチールフレームを融合し、超高層用カーテンウォールとして開発した製品です。強度や耐久性に優れ、大型パネルでの設計が可能です。

【大型パネル】ハイブリットウォールは耐風圧性能が高く、スチールフレームの強度及びGRCの熱膨張を吸収する機構のため、パネルの大型化が可能です。【超軽量】ハイブリットウォールはGRC厚み40mmで設計可能なため、PCaコンクリートの約1/3の重量にて製作可能です。【優れた意匠性】表面平滑性を追求した大型GRC、タイル・石材の打ち込み、打ち放し調仕上げ、骨材研ぎ出し、サンドブラスト仕上げなど、優れた意匠を実現可能です。【不燃・耐火性】ハイブリットウォールは外壁(非耐力壁)では1時間、複合耐火梁・柱では2〜3時間の耐火個別認定を取得しています。【耐久力】GRCセメントの採用により、ガラス繊維の補強効果が持続し、経年による変化が少なく、耐凍害性も良好な耐久性の高いGRCです。 断面図・平面図
実績紹介
GRC施工実績:秋葉原オフィスビル 大丸神戸復興計画 GRC施工実績 国立科学博物館研究棟 呉竹学園大宮校 大谷口給水所 サンプラザ日本橋
ページのトップへ