GRC:最新実績[渋谷ヒカリエ]|ニチアスセムクリート

  • GRC
  • アーキテクチュアルGRC
  • GRC/GRGデザイン提案
  • 最新実績紹介
  • 実績紹介
  • ハイウォール(超高層用カーテンウォール)
  • セムクリートライト(プレミックスGRC)
  • セムクリート2(ダイレクトスプレー 新GRC)
  • アーキテクチュアルGRC・グラフィックGRC(表面デザインGRC)
  • スピカ(GRG・ガラス繊維補強石膏)
  • 製品比較
  • 集合住宅用GRC製品
  • アスベスト対策
  • 巻き付け耐火被覆材
  • フリーアクセスフロア・NOAフロア/オメガフロア/パットフロア
ニチアスセムクリートのGRC技術(ハイウォール)が「渋谷ヒカリエ」に!
渋谷ヒカリエ

新たなランドマーク「渋谷ヒカリエ」を飾る
大型GRCカーテンウォール

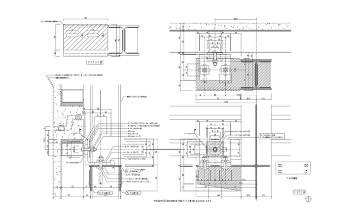
2012年4月26日に新しいランドマークとして渋谷に誕生した「渋谷ヒカリエ」。建物は商業施設と文化施設がある低層部と、事務所棟の高層部のボリュームに分かれ、低層部はGRC、ガラス、アルミパネルなどが複雑に入り組み、時間と共に表情を変える「渋谷ヒカリエ」の外観をつくり出しています。ニチアスセムクリートは、「渋谷ヒカリエ」の美しく反射する表面を実現するために、大型GRCカーテンウォール約2,000枚を製造、そして施工しました。約11,700m2に及ぶGRCカーテンウォールは、アルミパネルや押出成形板とは明らかに違う安定感を感じさせ、街のシンボルとしての品格を醸し出しています。約2年をかけた技術追求により面全体で光を反射させることに成功。デザインを最大限に活かす機能と美学を追究したニチアスセムクリートの技術が、渋谷の街を美しく彩っています。

GRC設計 GRC製造 GRC施工

● 設計者コメント

渋谷ヒカリエ外観の特徴として、複合用途の各ボリュームをロビーや屋上庭園等で分節しながら縦積みにしたことが挙げられます。ボリュームとしての表現を際立たせるために外装材に求められたのは、目地の少ない大判パネルの実現と、それでいてパネルの面精度を高いレベルで確保することであり、GRCカーテンウオールは見事にこの難題に応えてくれました。調整に調整を重ね青空が写りこむほどまでに洗練された表面塗装や、面取りを最小限に抑えたGRCパネル端部の納まりも、この建物を凛と美しく見せることに貢献してくれています。

(株)日建設計 設計部
[設計・監理]日建設計・東急設計コンサルタント共同企業体

● 施工者コメント

表面仕上げに超低汚染型ふっ素樹脂塗料を施した最大で6.0m×1.3mのGRCパネルを約2000ユニット発注した。型枠ベッドの面精度管理に始まり、何通りもの下地処理、塗装吹付け回数、吹付け方向の組み合わせを試して、どんな角度から見ても見事なまでの均一性を実現し、塗装ロットを計画的に管理することによって、パネル間の色差を無くした。発注者の要求事項にとことん応える姿勢は、ものづくりに携わる者の模範である。また、短工期での取付けを実現した生産体制も特筆すべきところである。

東急建設(株) 八城 泰衛
[施工]東急・大成建設共同企業体

ページのトップへ